Lot C4 In Surfside, Playa Potrero, Guanacaste

Type

Bed

Bath

Area (m²)

Price

Property Details

Description:
Located in the exclusive Surfside community, just 800 meters from the serene Playa Potrero, this property offers an excellent opportunity for developing a tourism project in one of Guanacaste’s most promising areas. Playa Potrero is known for its relaxed atmosphere, perfect for enjoying coastal living and the surrounding natural beauty.

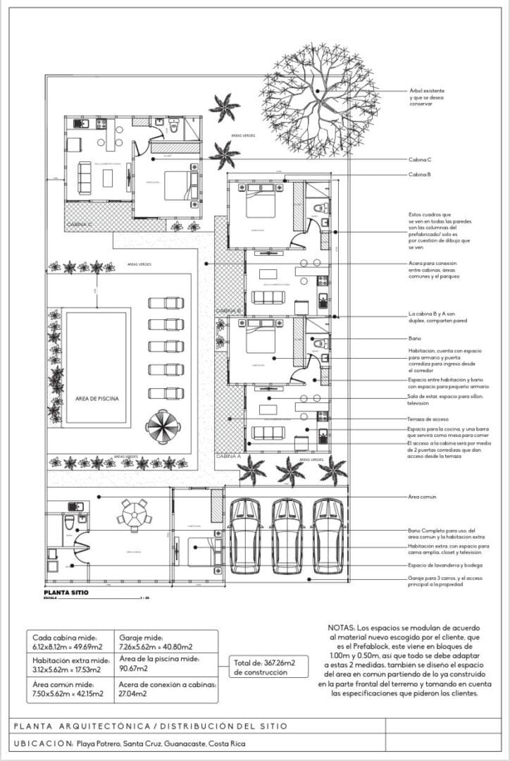
This 540 m² property has 60% of its construction completed. It includes one fully finished cabin, while the duplex cabins are still pending of construction, one bedroom, and a common area for socializing are ready. There’s also a large swimming pool, perfect for cooling off under the tropical sun, along with private parking for three vehicles. Additionally, the project already has electricity connected, and water service is in the process, facilitating further progress on the construction.

Prime Location:

    • Playa Flamingo and its new marina are just 5 minutes away by car, offering top-tier restaurants, bars, and water activities.

    • Playa Penca and Playa Prieta, known for their scenic beauty and tranquility, are only a few minutes away, making this property a hidden gem for those seeking a strategic location close to Guanacaste’s finest beaches.

Additional Details:

    • 800 meters from Playa Potrero

    • Ideal for vacation rental

    • Located in a safe and growing community

    • Don’t miss this opportunity to invest in a coastal paradise, with access to renowned beaches and a high potential for return.

    • Ubicada en la exclusiva comunidad de Surfside, a solo 800 metros de la tranquila Playa Potrero, esta propiedad ofrece una excelente oportunidad para desarrollar un proyecto turístico en una de las zonas más prometedoras de Guanacaste. Playa Potrero se caracteriza por su ambiente relajado, ideal para disfrutar del estilo de vida costero y la belleza natural que la rodea.

    • Esta propiedad de 540 m2 cuenta con la construcción en proceso al 60% de avance que incluye 1 cabina completa, falta construir las que son duplex, una habitación, un área común ideal para la convivencia, una piscina grande perfecta para refrescarse bajo el sol tropical, y parqueo privado para 3 vehículos. Además, el proyecto ya tiene electricidad conectada y el servicio de agua está en trámite, facilitando el avance de la obra.

    • Ubicación privilegiada:

    • Playa Flamingo y su nuevo puerto deportivo se encuentran a solo 5 minutos en auto, ofreciendo restaurantes, bares y actividades acuáticas de primer nivel.

    • Playa Penca y Playa Prieta, conocidas por su belleza escénica y tranquilidad, están a pocos minutos de distancia, lo que hace de esta propiedad una joya para quienes buscan un lugar estratégico cerca de las mejores playas de la costa dorada de Guanacaste.

    • Detalles adicionales:

    • 800 metros de Playa Potrero

    • Potencial para renta vacacional

    • Ubicación en una comunidad segura y en crecimiento

    • No pierdas esta oportunidad de inversión en un paraíso costero, con acceso a varias playas de renombre y un alto potencial de retorno.

Mercedes Castro

Related Properties

mountain ranch2

Mountain Ranch

Agent Contact Form